
Căn hộ penthouse này có tổng diện tích 470m2, nằm trên một tòa nhà cao tầng tại TPHCM. Chủ nhà mong muốn ngôi nhà trở thành nơi trú ẩn an toàn và bình yên giữa lòng đô thị ồn ào, náo nhiệt.

Thiết kế của căn hộ này được lấy cảm hứng từ những khu vườn nhiệt đới xanh mát. Các vật liệu tự nhiên như gỗ, tre được sử dụng khéo léo, kết hợp với màu xanh của cây cối tạo nên cảm giác gần gũi với thiên nhiên.

Khu vực ban công được biến thành góc thư giãn với sofa dài và gối lười. Ghế ngồi dạng gối lười mang đến cảm giác thư giãn như đang ở ngoài bãi biển du lịch.

Xích đu được bố trí ngay tại phòng khách, đáp ứng nhu cầu vui chơi của trẻ em. Cây xanh được sắp xếp khắp nơi trong căn hộ.

Một bộ sofa lớn với tông màu vàng được đặt tại trung tâm của phòng khách. Kệ tủ tường bằng gỗ được thiết kế đơn giản.

Phòng khách còn được bố trí máy chiếu, nhanh chóng biến thành rạp chiếu phim giải trí tại nhà.

Đèn trang trí tại khu vực bếp lấy cảm hứng từ chiếc nơm làm bằng tre. Vật liệu gỗ đem đến cảm giác ấm áp cho căn nhà.

Đồ trang trí được kết hợp đa dạng, từ những bức tranh do chính chủ nhà vẽ đến đèn lồng mây được làm theo yêu cầu đến cả một chiếc xe máy Honda 67. Chiếc xe được treo lên trần nhà, tạo điểm nhấn cho khu vực cầu thang.

Phòng tắm mở được bố trí tại phòng ngủ tầng 2. Cách thiết kế này phổ biến tại các khu nghỉ dưỡng lớn.

Một phòng của tầng 2 được bố trí thành phòng tập gym.

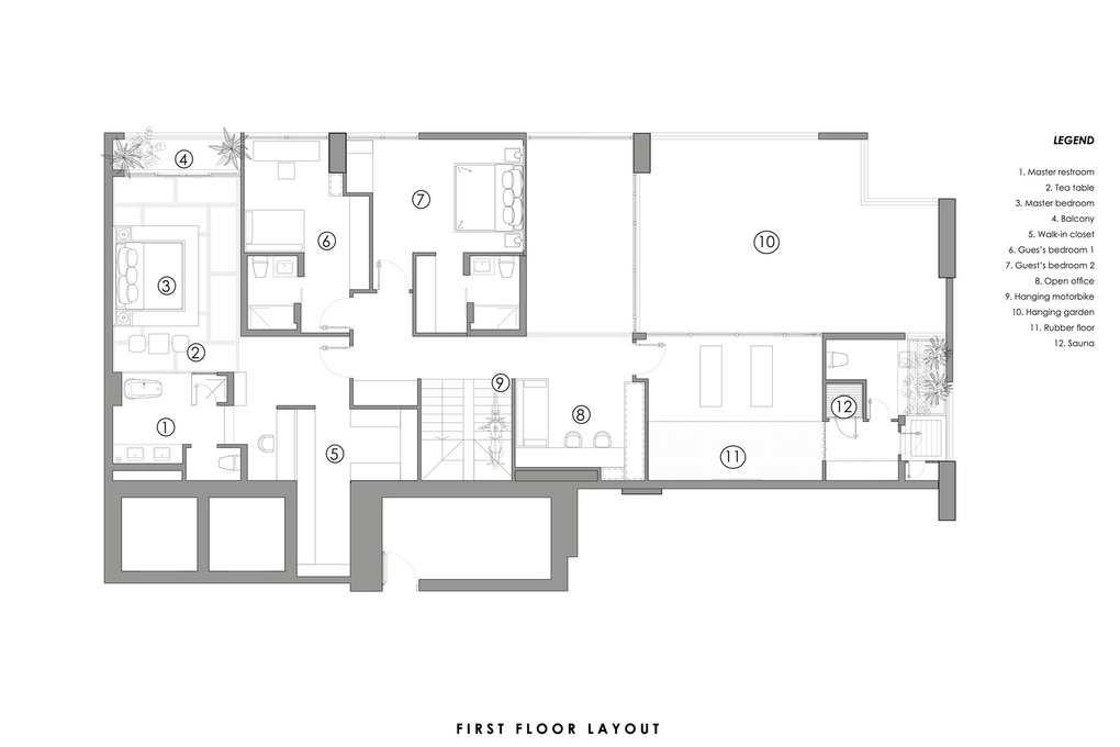
Bản phác thảo thiết kế tầng 1 của căn penhouse.

Bản phác thảo thiết kế tầng 2 của căn hộ.
Ảnh: StudioDuo Architecture.
