Căn hộ có diện tích 50 m2, tọa lạc trên tầng cao nhất của một tòa nhà thuộc quận Hai Bà Trưng (Hà Nội).
Khi lên ý tưởng cải tạo tòa nhà, nhóm KTS chọn cách tái hiện tinh thần của những khu tập thể cũ. Theo đó, mỗi tầng là một căn hộ với thiết kế những mảng tường vá víu, gạch thông gió và cả ô “chuồng cọp” mang đậm dấu ấn xưa cũ.
Nằm trên tầng cao nhất, với ba phía là vách kính, căn hộ mở ra một tầm nhìn đẹp với những mái ngói đỏ san sát của khu tập thể xưa, lên cao hơn là sông Hồng. Công trình được thiết kế như một “sân khấu”, giúp gia chủ chiêm ngưỡng toàn cảnh thành phố và ngắm hoàng hôn mỗi ngày.
Công trình được cải tạo theo phong cách ngôi nhà nhỏ trên thảo nguyên với tone trắng, ghi và gỗ sồi sáng màu.
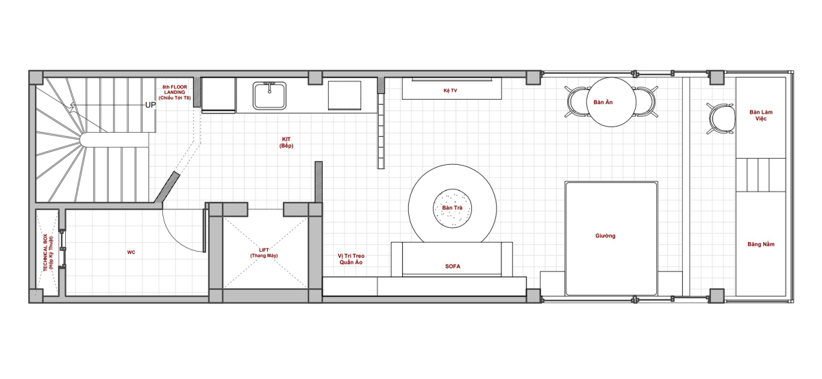
Công năng chính gồm phòng khách, bếp, phòng ngủ và một vệ sinh khép kín.
Các không gian được bố trí liên thông mà không sử dụng vách ngăn, tạo cảm giác thoáng rộng dù chiều ngang chỉ 3,97 m.
Nội thất ưu tiên thiết kế liền tường nhằm tối ưu diện tích, không gian sử dụng.
Do ở trên cao nên căn hộ luôn tràn ngập nắng và ánh sáng với không gian ngồi bên cửa sổ kiêm khu bàn làm việc.
Hệ thống ánh sáng với nhiều màu giúp tạo điểm nhấn cho căn hộ khi đêm xuống.
Khu bếp nấu nhỏ gọn, tối giản nhưng vẫn đủ công năng.
Phòng vệ sinh với tone xanh – trắng nổi bật, có vách tắm đứng để tối ưu không gian.
Khu thư giãn và không gian giặt sấy nằm liền kề sân thượng.
Sân thượng rộng rãi phù hợp làm không gian thư giãn, tổ chức các buổi tụ họp.
Mặt bằng bố trí nội thất.
Thu Hương
Thiết kế: Luke Nguyen Lab
Nhóm thực hiện: Luke Nguyen, Lộc Nguyễn, Hải Trần
Ảnh: Abluebird Photography
